














お知らせ
クリスマス家づくりフェア開催
お知らせ
クリスマス家づくりフェア開催




















土間と鉄骨階段 開放的で居心地のよい空間
「大切な友人としてお客様を幸せにする」思いで、大阪・兵庫・京都・奈良でデザイン性の高い注文住宅を提供するアーキホームライフは、資金計画・土地・建物をワンストップサービスで提案し、標準仕様で漆喰・トリプルガラス・W断熱をかなえる性能の高い住宅を提供いたします。同展示場はブリンク風モダンの建物と漆喰・無垢材を使った自然素材建物の2棟が見学できます。
モデルハウス情報
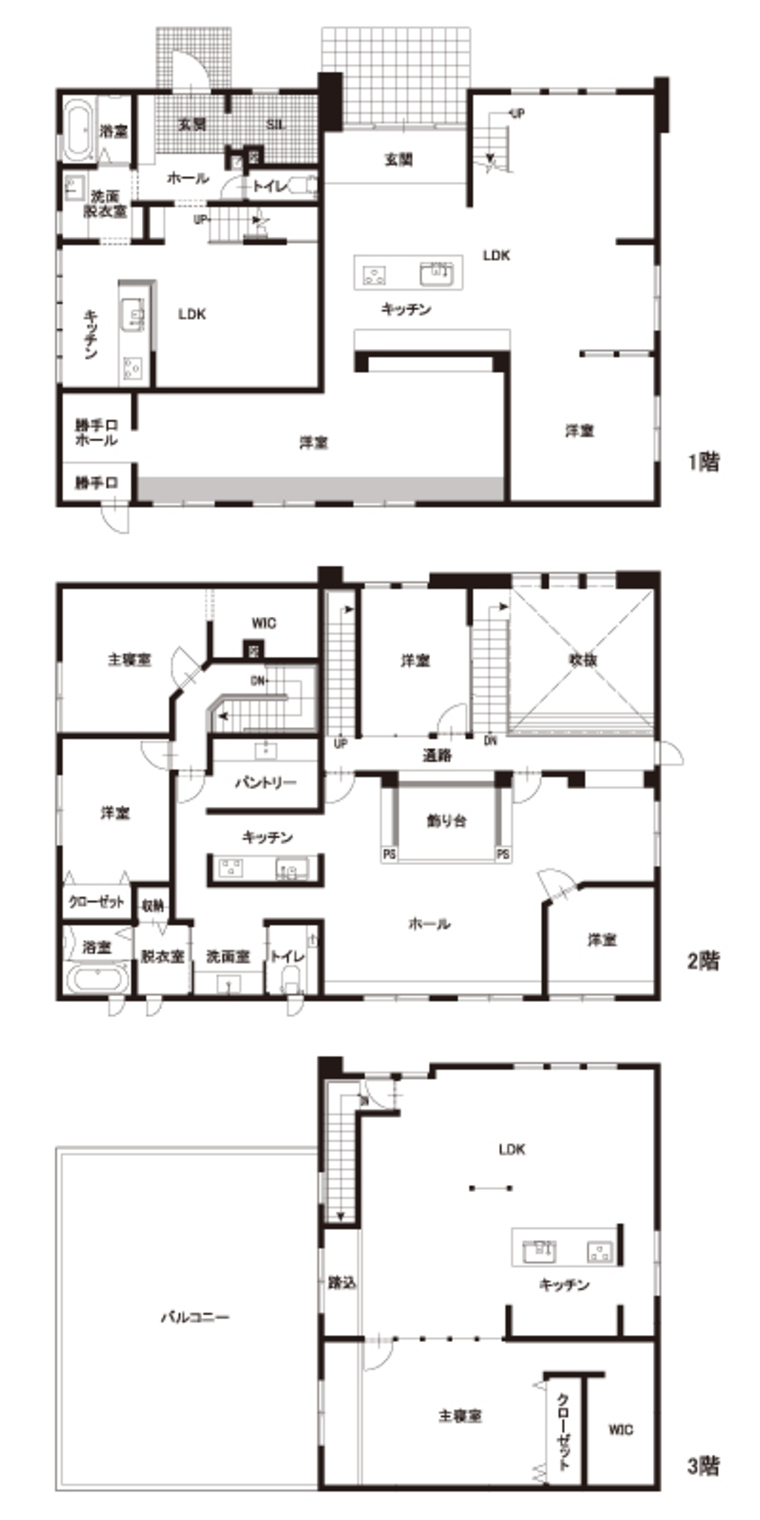
- 延べ床面積
- (左)268.29㎡(右)94.13㎡
- 1F
- (左)89.43㎡(右)46.26㎡
- 2F
- (左)89.43㎡(右)47.89㎡
- 3F
- (左)89.43㎡
- 工法
- 木造軸組
- 平均工期
- 120日
- 性能表示制度への対応
- あり
モデルハウスの見どころ
- 2階建て
- 3階建て
- 壁付けキッチン
- 対面キッチン
- アイランドキッチン
- シューズクローク
- 食品庫
- 収納スペース
- ウォークインクローゼット
- ウッドデッキ
- 床暖房リビング
- リビング階段
- 家事スペース
- ライブラリー・書斎
- リビング吹き抜け
- 25畳以上の大空間
- 広いお風呂
- 自然素材の内装材
























